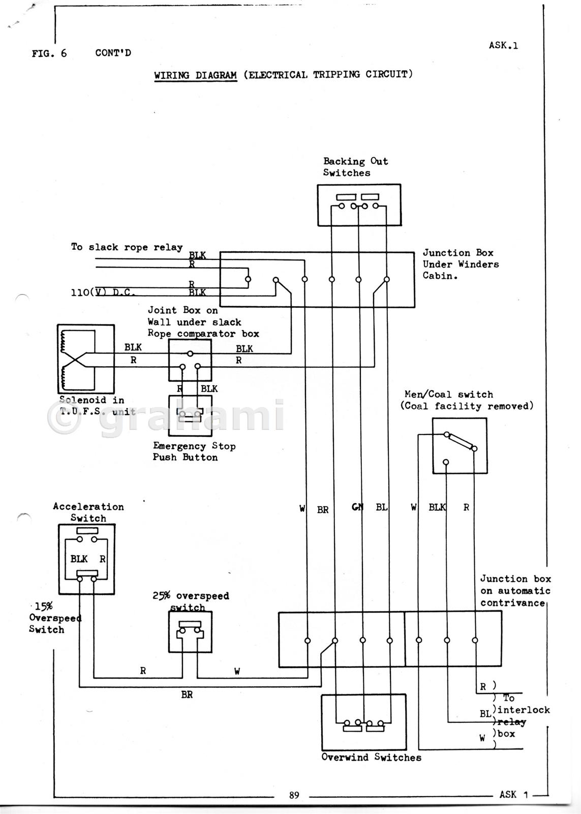
Askern Colliery Winding Engine - Tripping Circuit Part 2

From an original NCB document

This photograph is by grahami and was uploaded December 16th 2016. © grahami please do not copy or distribute without prior express permission.

You can close this window to return to the main site.