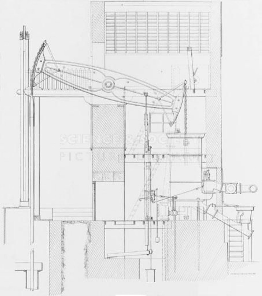
Pentrich Pumping engine drawing elevation

Technical drawing by Clarence O Becker showing the side elevation of an atmospheric engine at Pentrich Colliery, Derbyshire, based on a design by Thomas Newcomen (1663-1729). Newcomen designed an atmospheric or 'steam' engine in 1712. It was safer and more effective than the earlier Savery engine and was widely used to drain water out of mines. This drawing shows an engine, built by the engine-wright Francis Thompson (1741-1809), at the Oakerthorpe Colliery in Derbyshire which had a working life of 127 years. In 1841 it was re-erected at Pentrich Colliery, near Ripley, where it worked until 1918.

This photograph is by ICLOK and was uploaded May 14th 2008. © ICLOK please do not copy or distribute without prior express permission.

Rating

Nobody has rated this photograph yet, why not be the first?

Copy & Paste Forum Code

To display this photograph in a forum message please copy the text below and paste it into your forum message:

[photo]17396[/photo]

To display this photograph in a forum message and link to the full size image please copy the text below and paste it into your forum message:

[link]17396[linkphoto]17396[/linkphoto][/link]