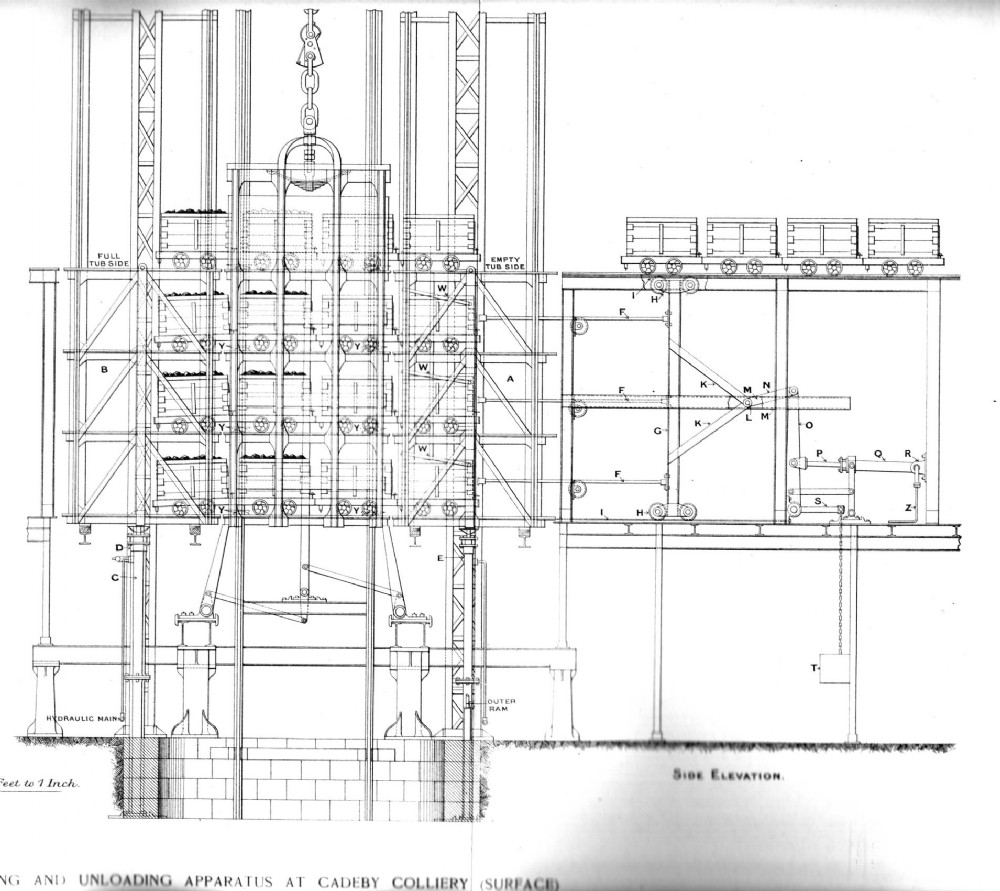
Hydraulic Cage Loading

This photograph was uploaded February 10th 2017 by christwigg.

Copyright / re-use statement: Practical Coal Mining 1908

Rating

Nobody has rated this photograph yet, why not be the first?

Copy & Paste Forum Code

To display this photograph in a forum message please copy the text below and paste it into your forum message:

[photo]110233[/photo]

To display this photograph in a forum message and link to the full size image please copy the text below and paste it into your forum message:

[link]110233[linkphoto]110233[/linkphoto][/link]