Home > Mines, Quarries & Sites > Askern Coal Mine > Historic Photographs Of Askern > Askern Colliery - Simplified Electrical Schematic

Askern Colliery - Simplified Electrical Schematic

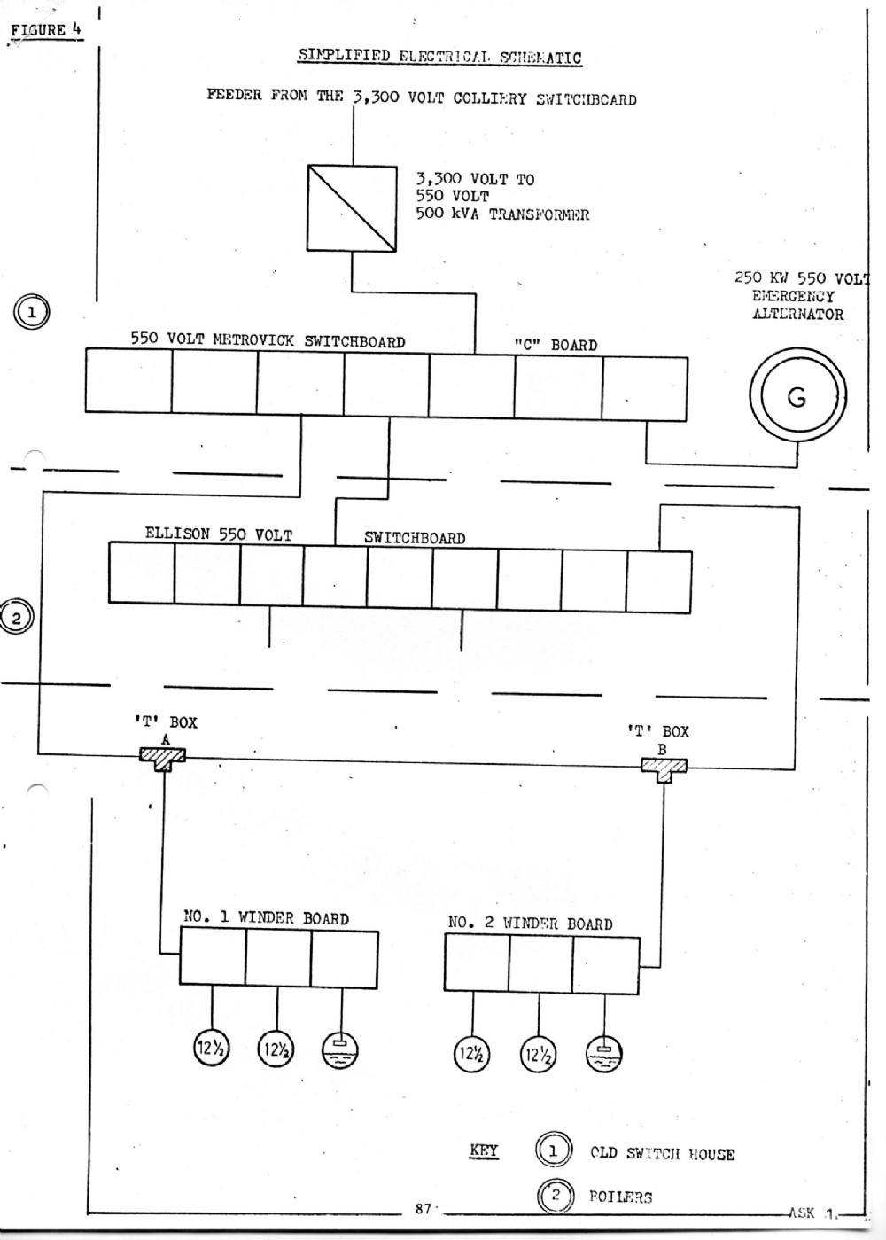
From an original NCB document

This photograph is by grahami and was uploaded December 16th 2016. © grahami please do not copy or distribute without prior express permission.

Rating

Nobody has rated this photograph yet, why not be the first?

Copy & Paste Forum Code

To display this photograph in a forum message please copy the text below and paste it into your forum message:

[photo]109569[/photo]

To display this photograph in a forum message and link to the full size image please copy the text below and paste it into your forum message:

[link]109569[linkphoto]109569[/linkphoto][/link]